文/仲继寿
中国建筑设计研究院有限公司总工程师
引言 住宅建设的规模化与商业化开发,让人们在选择居住区域的时候,要么放弃理想的居住空间,要么承担昂贵的换房成本。家庭结构的改变、居家养老的需求以及现代生活方式,人们对户内格局的调整及其机电改造的需求越来越突出。一方面,房屋结构的局限性、管线位置的不确定性以及拆改工程的复杂性,都为居住者入住后的居室改造带来了重重困难。另一方面,人们可能会买到符合当下生活场景的住宅,但未必适应未来生活场景的变化。 住建部提出了“好房子”的建设要求,倪虹部长指出,“建好房子是一个系统工程,有可能成为新赛道”。国务院李强总理强调,“着力建设安全、舒适、绿色、智慧的好房子,因地制宜推进好房子建设”。2025年政府工作报告也把推动建设“好房子”列入其中。近期住建部正在聚焦城镇住宅工程隔声、串味、渗漏等质量问题,开展重点整治。5月1日实施的《住宅项目规范》对于中国住宅发展的影响将是跨时代的,成为推动我国住房供给侧结构性改革的技术法规文件。 然而,到底什么是“好房子”,不同的开发商、管理者、设计师和居住者都有着不同的理解。文章结合中国院的工程实践,尤其是近年来参加“好房子”设计竞赛的成果,针对慢病防控、多孩家庭、居家养老和交往促进等生活场景,从空间意义、建筑体系和交付模式等方面,不断思考并理解“好房子”的价值导向。
01 新时代“好房子“面临的新挑战
1945年林徽因先生在《中国营造学社汇刊》第7卷第2期的文章“现代住宅设计的参考”中说,“住宅是全国经济的一个方面,公共卫生的一个因素,行政上的一个理想,也是文化上的一个表现”。这段话对于理解中国当今住房问题依然适用,住宅既是国民经济的重要组成部分,也是育养生息与文明传承的载体,更是公共卫生的第一道防线。所以今天的房地产是“支柱产业”还是“公共福祉”,我以为都是“住宅”这两个字可以容纳的。戳此了解,VR沉浸式看房
图1 《中国营造学社汇刊》1945年第7卷第2期, 林徽因,现代住宅设计的参考
新中国成立以来,住房问题一直是每届政府的重要议题。住房建设也从解决基本居住问题,发展到提升住宅功能与质量,再到满足人们日益增长的多样化居住需求。尽管城镇居民的居住面积从1978年的人均3.6平方米提高到2023年的人均40平方米,新时代“好房子”仍然是社会关注的热点和政府施政的重点,百姓的房子依然存在着一些问题。从李强总理关于住房安全、舒适、绿色、智慧四个维度看,安全依然排在首位。安全不仅涉及墙面屋顶开裂漏水、厨房串味卫生间返味等生理感官上的问题,还关系到居住者心理层面上的安心与宁静。慢性病统计数据表明,室内外各种环境因素依然通过不同的压力传导机制或多或少的影响着人们的生理与心理健康,直至生病。表现的现象是我国心脑血管疾病、癌症等慢性病发病率总体呈上升趋势,慢性病死亡人数占居民总死亡的比例超过80%,已经成为威胁群众健康、影响经济社会发展的重大问题。
图2 我国三大死因构成变化(来源:《柳叶刀》, 2017年中国负担研究,2019年6月24日在线发表)
时至今日,我们仍然需要向传统学习,包括科学的风水观、生理的节律观和可持续发展观,尤其是人们敬畏自然、利用自然和勤俭节约的生活态度。我们仍需研究工业时代唯机械论的人造环境营造方法,如各种室内环境“X恒”系统,是否会造成人们对环境的适应能力下降?传统房屋的大风水其实就是选址,小风水就是人与周边环境的关系。新时代住宅与居住环境依然面临新挑战。
1 慢性非传染性疾病的罹患风险与防控
致死风险归因分析表明,膳食风险、高血压、烟草与空气污染排名前三位。显然,生活方式与居住环境中的危险因素对健康的损害是累积性的,需要从减少居住环境健康危险因素,培养居民健康行为上下功夫。以住宅及其居住环境为载体实现健康管理与个性化健康服务,是现代住宅发展的显著特点,也是培养居民健康行为的有效途径,对慢性病防控将起到至关重要的作用。
图3 我国致死风险归因(来源:《柳叶刀》,2017年中国负担研究,2019年6月24日在线发表)
当然,时刻警醒我们的新型传染性疾病,如非典、新冠等的传播风险,也是居住环境面临的挑战。提高城市路网密度就是从规划角度减少传染性疾病的传播范围,通过控制小区或院落规模、立体复合社区活动流线等方式,打造1分钟楼栋交往圈、5分钟小区生活圈和15分钟社区服务圈,满足便捷居家生活和人性化服务管控的需求。提升空间灵活性和环境系统性能是从建筑设计层面提高居住空间疫情防控能力。建设智慧运维系统,完善非接触回家动线与非接触开启设施是从社区运维角度降低接触暴露风险。从居民服务层面则需以楼栋为载体,落实分级诊疗和家庭医生制度,实现连续的个人健康管理。
2 多孩家庭生活场景的不确定性
多孩家庭引起的家庭结构变化对于生活场景的预测变得更加不确定。我们既要满足每个家庭入住时的生活场景,也要根据不同生活场景的适应能力重新定义并设计住宅。
3 居家养老的刚性需求
截至2023年末,我国65周岁及以上老年人口占总人口的数量已经超过了15%。居家养老依然是我国长期的国策安排。按照9073规划,90%甚至更多的老年人将在自己的住宅实现养老与服务供给,住宅的全龄友好环境营造成为设计的基本要求。因此,所有的住宅都应该是“适老的”,物业服务也应覆盖家庭结构全寿命期的需求。戳此了解,1V1远程同屏带看
4 生活方式与健康促进
从改革开放前的“大院模式”到今天普遍的“职住分离”,人们的生活方式和交往模式发生了根本的变化。高度信息化、数智化的社交与购物平台,让人们足不出户就能了解世界,获得生活资料。“得房率”和无法驻留的景观,让人们的交往空间与交流机会被进一步的压缩,并对人们的心理健康带来不同程度的影响。《2022年国民抑郁症蓝皮书》显示,我国患抑郁症人数已经超过9500万,30%是18岁以下青少年,且一半是在校学生。 设计师应该努力创造各种空间、载体和人与人相遇的机会。交往会大大降低人们发生抑郁的风险,不只是诗情画意,在新的“城市更新”浪潮中更应重视1米以下儿童的视线空间质量,关注各类群体的无障碍通行环境,加强心理健康疗愈相关的环境建设。 值得高兴的是,从十八大开始,我国把健康融入所有的政策中,住宅及其居住环境成为疾病预防和健康促进的最好载体,提高全民居住健康水平也是公共卫生经济成本最低的方式。
因此,好房子首先要回归居住的本质,引导正确的居住价值观。
02 适应变化的住宅——面向居住宅者自主定制的住宅
面对新时代、新挑战,“好房子”在解决好基础安全、基本功能与建造质量的前提下,维护和促进人们的身心健康,支持居住者理想的生活场景。作者提出的“从设计预期走向居住者定制”的设计理念是指,通过设计引领与服务创新,为居住者实现自主定制生活场景提供空间和接口条件,让住宅能够适应家庭结构和生活需求的变化。因此,“好房子”要在以下6个方面适应当前和今后的生活场景。 图4 “从设计预期走向居住者定制”的理念框架(作者自绘)
1 空间布局:满足每个家庭成员的生活要求
只要孩子大于4岁就有分室居住的需求,卧室除了满足最小面积5m2、净宽不小于1.8m外,还要在家庭结构的不同阶段,都能保障每个家庭成员有安全的、符合生理健康和心理健康需求的个人空间,各个家庭成员正在进行的家务、学习、娱乐、休息的行为互不干扰。
图5 空间布局适应家庭结构变化 (来源:全国“好房子”设计大赛南京赛题中国院作品[1])
2 空间功能:适应全生命期家庭结构的变化
空间可变,是指在家庭结构的全生命期内,住宅产品的空间布局、使用功能、使用对象和使用人数可发生变化的设计理念与方法。我们常常提到的“N+1”, 就是在基本满足当前N种生活场景的基础上,增加一个弹性使用的空间,这个空间的功能由将来但目前并不确定的生活场景定义,可以是客卧、书房,也可能是游戏健身、保姆护工、收纳储物……。“X厅X室X卫”的套型定义可以作为销售用语,但不能作为设计要求。例如,“卫生间”作为各类卫生功能空间的统称,不一定是一个固定的房间。分散布置的卫生功能空间,更加符合日间和夜间的不同需求。我们需要研究居室空间与卫生功能空间之间的关系,在夜间能否便捷、安全地到达卫生间。尤其是高龄老人,坐便器就在床边,大概是高龄老人对于未来住宅的基础需求。所以在同一家庭的不同时期,随着家庭结构的变化,卫生间的服务对象也在不断地发生变化,可能是主卧专用(少孩时期)、公共使用(多孩时期)和老人专用(高龄时期)等多种状态,而不是“主卫”和“公卫”这种机械的区分与设计。 图6 卫生间布局适应家庭结构变化 (来源:全国“好房子”设计大赛南京赛题中国院作品)
3 空间尺度:满足居家养老的基本需求
空间尺度与居家养老需求匹配。一方面,老人居室应可以布置2张单人床并有直径不小于1.50m的轮椅回转空间。因此,对于2个及以上居室的住宅应有一间居室的使用面积不小于12m2,空间尺度应能满足轮椅回转通行的要求。另一方面,提高居家养老生活质量的本质是尊重老人的生活习惯、独处要求和生活尊严。因此,核心是设计好老人居室与如厕空间、陪护间和公共区域之间的流线,以及老人居室与餐厅、客厅之间的视廊。 三代同堂时,老人居室应尽量靠近卫生间。该卫生间在白天可以是公共卫生间,而在夜间则以方便老人就近使用为主,保障老人夜间如厕的安全。对于活力长者,能够通达每个空间非常重要,需要满足全空间轮椅通行和老两口分床或分室休息的需求。当有一位老人需要照看时,看护人员的房间要与被看护老人的卧室靠近,包括卫生间在内的各空间之间宜为软性分隔,视线和声音通达,便于照看。老人居室设置两个门,不仅便于轮椅的回游通行,还可降低轮椅回转空间的要求。高龄老人的生活,最需要的是陪伴,尤其是失独家庭或子女不在身边的老人。采用“双钥匙”住宅设计可将一套住宅分割成两个相对完整的居住空间,实现以房养老。年轻人既可用较低的价格租到功能较全的居室,还能为社会承担部分助老志愿服务。
图7 面向居家养老的住宅平面 (来源:四川省第一届“好房子”设计大赛中国院作品[3])
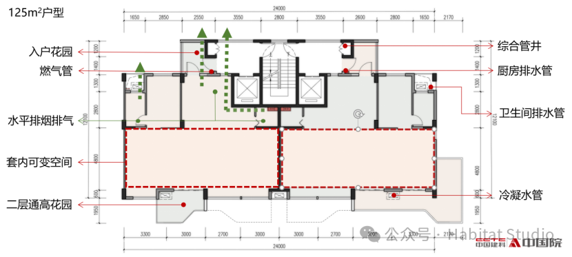
4 空间改造:不会影响邻居的生活
房子的寿命一般会比设计使用寿命长,甚至可达百年,住宅寿命期内会发生多次改造。避免对邻居生活的影响,厨房、卫生间的改造难度最大。将排水管、燃气管等竖向管道布置到使用空间之外,厨房排油烟和卫生间排气系统采用水平直接排向室外的方式,不仅提高了厨房、卫生间的空间效率和使用效能,厨房、卫生间的大小、布局,甚至位置还可随生活方式的变化而改变。当采用现浇厚板并做好防水时,这样的改变不会影响到上下邻居。如果室内没有影响空间灵活可变的墙和梁,居住者还会自主创造出更多空间布局与功能组合。
图8 基于框架厚板结构、管道外置的住宅平面 (来源:四川省第一届“好房子”设计大赛中国院作品)
5 建筑体系:能够支持生活场景的变化
日本SI体系的核心是实现管线系统与住宅结构的分离,荷兰SAR体系则是强调空间支撑体与填充体的分离,目标都是为了解决自主定制生活场景与空间布局的矛盾问题。无论是混凝土结构还是钢结构,框架厚板结构是实现可变空间建筑体系的最佳结构形式,空间灵活可变,不会受到像短肢剪力墙结构体系中的梁柱与承重墙的约束,从而适应家庭结构全生命期空间需求的变化。电梯井和楼梯间采用剪力墙结构承担抗侧力,构成了居住者可自主定制生活场景的结构、空间、设备设施、交付模式与自主建设的逻辑,实现从SI建筑体系走向生活全场景定制。
图9 面向居住者生活场景定制的设计与交付逻辑(作者自绘)
首先我们将住宅套内平面分为可变空间和不可变空间,并尽量将竖向管道、集中管井、燃气管、落水管和主要排水管等竖向管道设置在使用空间之外。结构外框架柱采用扁柱形式,扁柱截面长度与凸窗深度相当,正立面框架梁偏室内布置,背立面框架梁根据空间布局可偏室外或室内设置。一方面,不但避免在室内出现可见的梁柱,而且可以在凸窗范围隐藏布置雨水管、冷凝水管和排水管等竖向管道,在北方地区还能较易实现管道防冻的要求。另一方面,这样布置梁柱还能提高围护结构门窗设置的自由度,并可与空中庭院或阳台空间对接,实现立面创作的多样性,2层通高的空中庭院就可在客厅和卧室空间外实现相邻层间错位设置。
6 交付模式:适应不确定的居住者及其生活场景
开发商和设计师在产品定位与规划设计时都无法明确未来的居住者入住时的生活场景以及入住后的需求变化。因此需要提供生活场景驱动的产品设计与交付模式。设计师应最大限度的提高空间灵活可变与低碳健康性能,适应多种生活场景需求。开发商可创新住宅产品的交付模式和交付时机,实现面向不同入住者需求的个性化住宅产品交付。交付模式可为成品交付(除活动家具和配饰外,可实现拎包入住的住宅产品)和空间交付(完成住宅主体结构和围护结构,户内以大空间为主要交付内容);也可按交付时机分为一次交付(局部交付或成品交付)和二次交付(定制交付)。 在单一建设责任主体的情况下,住宅产品交付可采用分阶段混合交付模式。第一阶段,未确定居住者或居住者对已购住宅室内空间感知还不清晰,此时将住宅的围护结构、公共区域、竖向管道管线以及局部用水空间按成品要求交付居住者,实现不变空间范围的成品交付(俗称“精装交付”),套内其他区域空间交付(俗称“毛坯交付”)。第二阶段,当居住者对室内空间有了切身体验,开发商根据居住者个性化生活场景及其空间需求进行室内装修并交付第二阶段的产品,即可变空间交付,也称“定制交付”。分阶段混合交付模式避免了目前要么一次精装交付,要么毛坯交付的缺点,尤其是居住者入住后二次拆改所造成的材料浪费、空气污染和邻里干扰等问题。 创新的产品交付模式还能鼓励居住者参与自主建造与使用维护。比如:入户花园可能成为快递收纳、卫生防疫、更衣换鞋、储存、绿植、宠物等多种功能的空间;空中庭院不仅能够释放个性化的生活方式,营造亲近自然的生活场景,在保障居住环境安全的前提下,空中庭院景观会随着生活的继续而变化,在一定程度上解决了住宅的匿名性问题,这可能是未来住宅的一个特征。
图10 入户花园的场景示意 (来源:全国“好房子”设计大赛南京赛题中国院作品)
03 促进交往的社区—— 从住家-住栋-小区-社区的交往圈
人们常说,建筑是凝固的音乐。快速发展的技术可以赋能建筑,但不应成为生活方式的羁绊。比如“X恒”房屋一般不设阳台,就有可能牺牲了居住者与室外环境的互动机会。因为激活社区活力的,是流动的人群与万物的声音,是人与自然间的节律互动。鼓励人们走出家门,并提供交往空间、交流载体和碰面机会,应成为规划设计的重要方面。
1 开放融合的规划布局
最大限度利用小区周边各种资源是实施开放融合规划设计策略的主要目的。小区规划除了在道路开口、建筑退线、城市风貌等方面顺应上位规划外,还要面向目标客群和全龄友好,进行专门的交往空间规划。比如:打通小区与城市绿带、公园的联系,形成连续的、尺度宜人的社区休闲空间;小区街角退让设置小型广场并向城市开放;小区庭院与城市景观视线贯通;通过连廊、街巷等连接周边文化体育、休闲商业等公共资源,促进人们走出小区,融入城市。
图11 开放融合的规划设计策略 (来源:四川省第一届“好房子”设计大赛中国院作品)
2 规模适中的院落空间
规模适中的围合院落和韵律感强的城市界面,能够强化社区归属感,从而促进邻里相识、相望。通过小区与周边协调的城市设计,形成数个规模适当的围合院落,有利于促进人们的相识相望。采用高低错落的楼栋组合,形成韵律感强的小区天际线,激发社区认同,避免千城一面。
3 开放共享的街区生活
构建开放街区与生活轴线,让人们在便捷共享的街区生活中,依然拥有归家的仪式感和不被打扰的宁静。根据道路级别,街区规划,将可对外开放运营的各类文体商业服务设施沿周边布置,并加大退线,形成尺度宜人的开放街区。开放商业街区与沿街住宅楼栋底层结合,通过住宅局部架空、连廊,和贯穿小区的生活轴线和街区商业,将周边人群和公共设施融入社区生活,营造开放共享的活力生活空间。连廊和底层架空不仅赋予人们风雨无阻的归家路线和仪式,更是连接周边资源的重要载体,小孩上学也有了专门的不需接送的安全路径。
图12 开放共享的街区 (来源:四川省第一届“好房子”设计大赛中国院作品)
4 全龄友好的交往空间
针对不同人群营造不同气氛的交往空间,儿童的、年轻人的、老人的,而且老人儿童的活动互相望见又互不干扰。根据不同活动范围构建交往空间的界面、路径和功能,比如竖向的1分钟楼栋交往圈,院落空间的5分钟生活圈,以及围绕社区中心的15分钟社区服务圈。
图13 交往界面与路径设计 (来源:四川省第一届“好房子”设计大赛中国院作品)
区分不同年龄、不同主题布置相应的交往设施,并与生活服务设施融合。比如,开放街区采用变化地面铺装材料与肌理,可降低车行速度,提高空间安全;在小区人行入口设计各种便民设施,如坐凳、快递柜、遮阴避雨等设施,体现小区的温度;活动区域的材质和色彩满足儿童自由奔跑的天性和安全;下沉广场可以集聚更多的参与者,并能承担大型社区活动。
图14 交往空间与设施规划 (来源:四川省第一届“好房子”设计大赛中国院作品)
提倡建筑底层架空,不仅拓宽了院落空间与视野,还为人们提供了宜人的活动场所。屋顶花园、空中庭院及其空间街道的设置,可以提高高层居住人际交往的机会。入户花园让人们更愿意走出家门,接触自然。 共享空中庭院可分时使用设计,比如:中午是社区食堂,下午是四点半学堂,晚上是年轻人放松的地方。
5 连续无障碍的交往路径
无论是地面空间、甲板空间还是空中廊道,人们的交往界面和路径应该是连续的、无障碍的。比如1分钟楼栋交往圈从底层架空、到空中庭院,再到屋顶花园,屋顶花园和空中庭院等还可以在楼栋之间通过廊桥连接起来,实现更大范围的交往和设施共享。
图15 连续的交往路径 (来源:四川省第一届“好房子”设计大赛中国院作品)
在建筑立面设置交往用室外楼梯,构建空中街道,促进空中庭院所在高度的上下楼层的邻里交往,让高层建筑也能有多层建筑一样的交往体验,在看与被看的风景中,提高社区的活力。连廊不仅是疏散空间,还是交往空间。
6 智慧低碳的建筑技术
采用低碳与智慧技术可极大地提高生活品质。低碳建筑体系、智能家居、立体智慧机械停车、太阳能建筑一体化、光储直柔电力系统等,让人们在高品质居住生活中贡献“双碳”力量。 低碳建筑体系包括符合模数的平面与空间、框架大空间结构体系、工业化隔墙部品以及便于维护更新的管道系统,能够降低住房使用维护成本,提高对不同生活场景的适应能力。
图16 低碳的建筑体系 (来源:全国“好房子”设计大赛北京赛题中国院作品[2])
停车问题已经成为现代生活的重要组成部分。机械停车设施布置在住宅楼下方,可最大限度地将小区公共空间留给居民生活及公园营造,既减少了土方开挖,也让城市真正实现海绵功能。以成都为例,在2.0容积率平均户型100m2的情形下,采用一层地下空间、二层智慧立体停车系统,即可实现每户1.2个车位。
图17 智慧停车系统规划 (来源:四川省第一届“好房子”设计大赛中国院作品)
04 关于几个热点话题的讨论
1 住宅层高与室内净高
在国家或地方技术法规层面,住宅控制室内各类居住空间的净高既满足不同住房类型的供给需求,也符合建筑行业“双碳”的要求。5月1日实施的《住宅项目规范》(GB55038)-2025规定,卧室、起居室的最小净高为2.6m,不仅提升了空间舒适度,回应我国人均身高提高的现实,让房间有更好的天然采光和自然通风条件,同时也为新技术赋能、个性化装修、生活需求变化提供了更充足的空间条件。 图18 住宅层高与室内净高 (来源:北京雅世合金公寓住宅剖面示意,中国院设计)
2 建筑体系与建造方式
无论是混凝土结构还是钢结构,交通核的结构抗侧力性能和框架厚板结构的建筑大空间优势是显而易见的。在“不计容的凸窗空间”内,可以设置竖向管道,既能净化使用空间,还能满足北方地区管道防冻要求。我国属于多地震地区,高层混凝土建筑不宜采用竖向结构预制工艺,竖向结构现浇、水平结构预制叠合、围护结构装配和装配式内装更符合国情。
图19 大空间建筑体系适应不同朝向的住宅 (来源:全国“好房子”设计大赛南京赛题中国院作品)
3 住宅创新与社会成本
“第四代住宅”主要是指有一个面积较大、二层通高、不可封闭、产权私有、上下楼层错位设置的空中庭院。因其丰富的自主绿化空间和户外生活场景,以及各地出台的“不计容”政策加持而备受市场热捧。然而,除了可能影响房间自然采光、邻里产生对视外,还应关注空中庭院的可持续运维、城市风貌管理和社会安全成本等问题。这不是“好”与“不好”的问题,而是城市管理者、设计师、开发商、物业服务商、居民及其邻居等多个相关方利益平衡的问题。
图20 户属空中庭院面临运行维护困难和管理安全隐患 (来源:作者自拍)
4 技术经济指标与居住者体验
住宅按套设计与定价,小区按居住人口数量管控,引导居住者关注住宅的“空间意义”而非简单的“大面宽”、“得房率”,探索小区指标从目前的“容积率”和“建筑密度”转向居住人口密度、城市风貌和社区功能。
5 住宅产品交付方式
分阶段混合交付模式可以提高住宅使用寿命,减少个人换房投入,降低城市更新成本,推动建筑工业化和住宅产品单一责任主体机制的建立。
6 新型住房服务业
学习汽车产业“制造+4S店”的核心是构建建筑工业与住宅服务业。这里的住宅服务业,是指以住宅产品及其居住环境为载体,以居住者为服务对象,在住房寿命期内和家庭结构生命期内实现居住生活全过程服务的产业。这是一个横跨社会保障、制造业、传统服务业和信息产业的现代服务业,既适用基于建筑工业的新建住房,也符合既有住房的改造与服务,是对现状物业服务产业的升级。所以,新型住房服务业一定是覆盖居家养老在内的全过程、全龄段和全业态的服务业,需要政府在住宅建设、消费、运营和更新等环节的政策引导,让生活场景定制服务成为满足“安全、舒适、绿色、智慧”要求的新兴产业。
图21 建筑工业、住房服务业与监管环境(来源:作者自绘)
05 结语
标准引领和财政激励对于“好房子”建设非常的重要,既要关注百姓的居住体验,也要发挥住房对于拉动经济、促进消费、稳定社会的作用,就像一开始引用的林徽因先生的观点那样,住房不只是技术先进与经济合理,还关乎民生福祉和社会发展。 “好房子”建设就是要以全龄人群的生理健康与幸福愉悦为目标,以用户可感知、可担负的住房产品为抓手,在规划与建筑设计的统领下,面向当今多孩家庭、居家养老、邻里交往和城乡风貌等社会问题,通过居住者可自主定制的全场景住宅产品,适老宜幼、全龄友好的交往促进空间,覆盖家庭全生命期和住宅全寿命期的全要素运营,以及融合社会保障与健康服务的新型住房服务业,实现人与自然和谐共生,身体健康与心情愉悦共同进步、物质环境与社会环境平衡发展的美好生活! 回到“好房子“的价值导向。我以为,“好住房”与“好小区”就是要关注居住的本质,回归居住空间的意义,持续维持并促进人们的身心健康;“好社区”和“好城区”就是要通过包容、共享的设计,关注利益相关方的价值诉求,强化社区交往环境与城市基础设施的共同建设与共同治理,实现全龄友好与环境可持续;“好设计”与“好服务”就是要从设计之初就要面向全龄人群、面向运营、面向可持续更新,明确好住房和好小区的全寿命期单一责任主体。
来源: [1] 适·变——面向多孩家庭与在宅养老的住区设计,全国“好房子”设计大赛南京赛题一等奖作品,中国建筑设计研究院有限公司,主要完成人员:仲继寿、任中、李雯、王嘉婧、马荣森、吴思齐、高雨乾、张睿、张城恺、方菲、刘松、康向东、唐致文、岳红、那可意 [2] 相适· 相望——面向全生命期改善刚需的和谐住区,全国“好房子”设计大赛北京赛题一等奖作品,中国建筑设计研究院有限公司,主要完成人员:仲继寿、赵钿、王凌云、焦杨、白洋、闫小曼、李旋、张琪、赵博煊、张玲、董博圆、周瑞雪、胡荣、周小慧、王红杰 [3] 青年公社——可定制&有温度的未来社区,四川省第一届“好房子”设计竞赛一等奖作品,中国建筑设计研究院有限公司四川分公司,主要完成成员:仲继寿、李文博、邓扬、张周钰、徐昊、刘泽霖、任存智、胡南 来源:明源地产研究院